Hotel 1

Hotel 2

Hotel 3

Hotel 4

Convention Center
Name :
Email :
 
Hotel 1 Welcome to Pacific Palm Marina Resort Fiji
Hotel 1 - Central Facilities Floor Plan

The Royal Meridien Hotel - Typical Over Water Suite

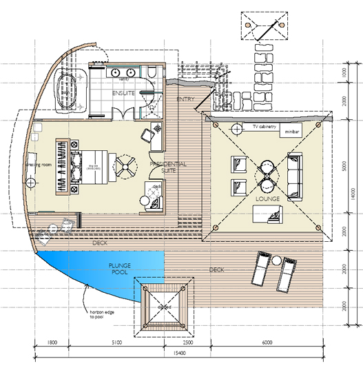
Hotel 1 - Presidential Villa

The Royal Meridien Hotel - Typical Over Water Suite

Hotel 1 - Lagoon Bure

The Royal Meridien Hotel - Typical Over Water Suite

Hotel 1 - Typical Over Water Suite

The Royal Meridien Hotel - Typical Over Water Suite

 

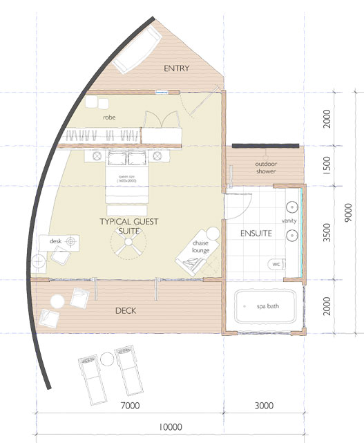
Hotel 1 - Typical Guest Room

The Royal Meridien Hotel - Typical Over Water Suite


homeabout usresortsproperty developmentsamenitiesinvestment opportunitiesgalleryfijisitemapcontact us